The new Shaheed Ali School, set to open at the beginning of the academic year, will see the roads surrounding blocks be one-way for vehicles. This change was brought about yesterday, as per a statement released by HDC.
HDC stated that the school, which has been built near Hiyaa Flat 15 and 16 towers, has had its surrounding roads (Berebedhimaa Hingun Goalhi 1 and 2) be changed to one-way roads.
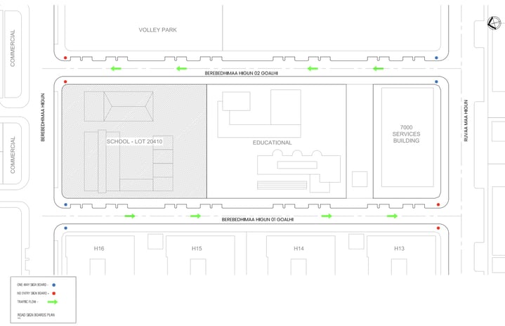
HDC also stated that the change was brought in order to solve congestion, along with making it a safer area for school students to walk in.
The chart that was released by HDC sees a south-to-north traffic flow on Berebedhimaa Hingun Goalhi 1, with Goalhi 2 seeing north-to-south traffic flow.
The academic year will begin on 27th January.
The project to build the school was awarded to Rasheed Carpentry and Construction (RCC), with the foundation having been laid in December 2023 and the total work on the school nearing completion.
The school will be teaching students from Grade 1 to Grade 10, with the capacity to teach 1,500 students per school day. The Education Ministry stated that the school has 54 classrooms with a capacity for 32 students and three elevators with a 20-person capacity, along with all classrooms airconditioned. The electricity for the school will be created by solar energy.
Once the school has been finished, it will have the largest school library, auditorium, hall and staff canteen in the Male' region.



